Het omgevingsplan voor nieuwbouw Veldegge-Noord in Heeten is vastgesteld. Afgelopen najaar kon iedereen zes weken reageren op het plan. Er kwamen geen reacties die reden gaven om het plan te veranderen. Daarom heeft het college van burgemeester en wethouders het plan goedgekeurd. De gemeenteraad neemt eind januari een besluit.
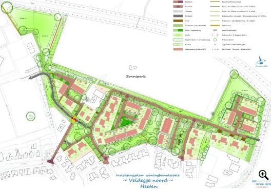
Veldegge-Noord wordt een nieuwe woningwijk naast de bestaande wijk Veldegge. In de wijk komen 90 woningen. Het gaat om:
- 8 vrijstaande woningen
- 20 twee-onder-een-kapwoningen
- 10 woningen die met de achterkant tegen elkaar aan staan
- 52 rijtjeswoningen
Van de rijtjeswoningen zijn er 24 van woningcorporatie Salland Wonen.
Wethouder Alexander Kreule: “De bouw van nieuwe woningen in Heeten is weer een stap dichterbij. Dat is mooi nieuws voor Heeten, want de animo is groot. Dat blijkt wel uit de laatste informatiebijeenkomst van afgelopen oktober, waar 180 aanwezigen waren.”

Kavels
Er komen kavels voor zelf bouwen, kant-en-klare woningen en woningen via het Collectief Particulier Opdrachtgeverschap (CPO). Bij CPO bouwen toekomstige buren samen hun huizen. De Veldegge Noord vormt een noordelijke uitbreiding van de Veldegge. De locatie ligt aan de noordrand van Heeten en wordt begrensd door sportvelden aan de westzijde, een zonnepark aan de noordzijde, en daarachter de provinciale weg N332.
De wijk ligt aan de noordkant van Heeten. Aan de westkant liggen sportvelden. Aan de noordkant ligt een zonnepark en daarachter de provinciale weg N332. De groene zone uit Veldegge loopt door naar Veldegge-Noord. Deze wordt verbonden met het groen bij de sportvelden. Ook komen er meerdere groenzones waar regenwater in de grond kan zakken.
Langs de Houtskoolstraat komt een speelveldje. Kinderen uit de nieuwe wijk kunnen daar spelen. Dat kan ook bij de Johannalaan.
Hoe nu verder?
De gemeenteraad bespreekt het plan volgende week. Een week later neemt de raad een besluit. Daarna ligt het plan nog zes weken ter inzage. Als niemand bezwaar maakt, is het plan medio maart definitief.
Tip Salland1:
Stuur een e-mail naar redactie@salland1.nl